WOHNEN
UNSER AKTUELLES PROJEKT
11 ATTRAKTIVE EIGENTUMSWOHNUNGEN
HAUPTSTRASSE 45 – UNTERSCHLEISSHEIM
IN DEN EIGENEN VIER WÄNDEN
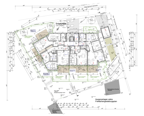
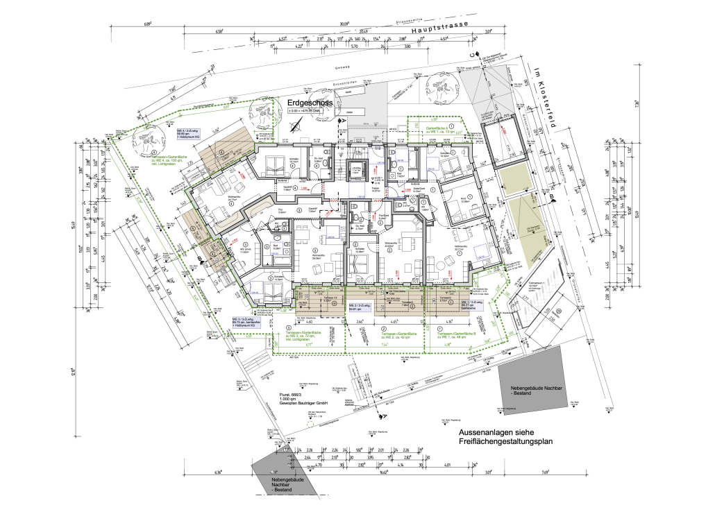
Individuelle und moderne Grundrisse, eine helle und freundliche Wohnatmosphäre und eine hochwertige Ausstattung – das zeichnet die 11 Eigentumswohnungen im Mehrfamilienhaus an der „HAUPTSTRASSE 45“ in Unterschleißheim aus.
Sie wohnen nahezu im Grünen, die Naherholungsgebiete des Münchner Nordens oder auch die Schlossanlage Schleißheim liegen in unmittelbarer Nähe, und doch befindet sich der Standort im direkten Einzugsbereich der Metropole München. Außerdem bietet die Stadt Unterschleißheim alles, was zum täglichen Leben nötig ist, dazu Bildungs- und Kultureinrichtungen sowie zahlreiche Sportmöglichkeiten. Die eher lockere Bebauung im Umfeld mit Einfamilien- und maximal dreigeschossigen Mehrfamilienhäusern lässt Raum für Grünbepflanzung.
Die Wohnungen im Erdgeschoss des Bauprojekts „HAUPTSTRASSE 45“ haben neben den Terrassen auch einen eigenen Garten. Die Wohnungen im Obergeschoss haben einen oder mehrere Balkone und die Wohnungen im Dachgeschoss Dachterrassen und Balkone, um die grüne Atmosphäre des Wohnumfeldes zu genießen.
Wir als Bauträger achten sorgfältig auf die Auswahl und Lage der Standorte unserer Bauprojekte und planen die Ausführung nach ökologischen Gesichtspunkten, dabei ist eine qualitativ sehr gute Bauausführung für uns selbstverständlich. Damit erfüllen wir auch die KfW-Energieeffizienz-Standards.
Ob als Kapitalanlage oder selbst bewohnt, eine Investition in eine Wohnung des Mehrfamilienhauses an der „HAUPTSTRASSE 45“ ist in jedem Fall eine gute Entscheidung. Die Nachfrage nach Wohnraum wird auf absehbare Zeit hoch bleiben. Die Stadt Unterschleißheim, der Landkreis München und die Metropole München bieten beste Voraussetzungen für eine wirtschaftlich positive Entwicklung und bleiben damit als Immobilienstandort mehr als interessant.
| Einheit | Wohnung | Grösse | Nutzfläche | Grundriss – Download | Kaufpreis |
|---|---|---|---|---|---|
| Whg. Nr. 1 (Erdgeschoss) | 3-Zi.-Garten-Wohnung barrierefrei | 86,21 m² Wohnfläche | 97,21 m² | – | VERKAUFT |
| Whg. Nr. 2 (Erdgeschoss) | 2-Zi.-Garten-Wohnung | 53,81 m² Wohnfläche | 66,30 m² | – | VERKAUFT |
| Whg. Nr. 3 (Erdgeschoss) | 3-Zi.-Garten-Wohnung barrierefrei, Hobbyraum | 98,50 m² Wohnfläche (inkl. Hobbyraum im KG zu 1/2) | 134,81 m² | – | VERKAUFT |
| Whg. Nr. 4 (Erdgeschoss) | 2-Zi.-Garten-Wohnung Hobbyraum | 72,31 m² Wohnfläche (inkl. Hobbyraum im KG zu 1/2) | 99,52 m² | – | VERKAUFT |
| Whg. Nr. 5 (1. Obergeschoss) | 3-Zi.-Wohnung barrierefrei | 83,93 m² Wohnfläche | 92,46 m² | – | VERKAUFT |
| Whg. Nr. 6 (1. Obergeschoss) | 2-Zi.-Wohnung | 49,30 m² Wohnfläche | 57,26 m² | – | VERKAUFT |
| Whg. Nr. 7 (1. Obergeschoss) | 3-Zi.-Wohnung barrierefrei | 83,93 m² Wohnfläche | 94,11 m² | – | VERKAUFT |
| Whg. Nr. 8 (1. Obergeschoss) | 2-Zi.-Wohnung | 57,68 m² Wohnfläche | 65,90 m² | – | VERKAUFT |
| Whg. Nr. 9 (Dach- und Galeriegeschoss) | 3-Zi.-Dachterrassen-Galerie-Wohnung | 91,02 m² Wohnfläche | 123,55 m² | – | VERKAUFT |
| Whg. Nr. 10 (Dach- und Galeriegeschoss) | 2-Zi.-Dachterrassen-Galerie-Wohnung | 55,92 m² Wohnfläche | 68,73 m² | – | VERKAUFT |
| Whg. Nr. 11 (Dach- und Galeriegeschoss) | 3-Zi.-Dachterrassen-Galerie-Wohnung | 104,24 m² Wohnfläche | 162,11 m² | – | VERKAUFT |
Tiefgaragen-Stellplatz (Einzelstellplatz): 35.000 EUR
Die oben stehenden Angaben dienen ausschließlich Informations- und Werbezwecken und stellen kein Angebot dar. Sämtliche Darstellungen (z.B. Pläne, Visualisierungen) sowie alle sonstigen Informationen entsprechen dem Stand Januar 2024. Änderungen bleiben vorbehalten. Dargestellte Möblierungs-, Ausstattung- und Sanitärgegenstände sind lediglich beispielhaft. Möblierungen gehören nicht zum Leistungsumfang des Bauträgers.
Die zeichnerische Darstellung der Perspektiven und Fassaden sowie deren Farbgestaltung geben die Sicht des Illustrators wieder und sind deshalb nicht verbindlich.
Bei den Quadratmeterangaben handelt es sich um Fertigmaße. Bei der Ermittlung der Wohnflächen wurden die Flächen der Terrassen im Erdgeschoss sowie die Flächen der Balkone im 1. OG und im Dachgeschoss je zur Hälfte angerechnet. Die Flächen der Dachterrassen wurden zur Hälfte bzw. zu einem Drittel angerechnet. Die Hobbyräume der Wohnungen Nr. 3 und 4 im Kellergeschoss wurden zur Hälfte berücksichtigt; die Flächen der zugehörigen Vor- und Kellerräume sind bei Berechnung der Wohnflächen ohne Ansatz geblieben.



















